Maison neuve à
Conlie (72240) Référence : FH2343425_11

Prix du projet : Maison avec Terrain

prix 176 000 €

  • 3 pièces
  • 2 chambres
  • Surface maison 65 m2

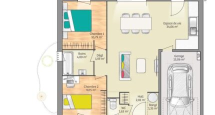
VENTE d'une maison de 3 pièces (65 m²) à Conlie
IDÉALEMENT SITUÉE - MAISON 3 PIÈCES NEUVE
En vente : à deux pas du Mans, nous vous proposons, idéalement située dans Conlie (72240), cette maison de 3 pièces de plain-pied de 65 m² et de 655 m² de terrain. Son intérieur inclut deux chambres, une cuisine et une salle de bains.
Cette maison est neuve.
La maison se trouve dans un secteur prisé. Il y a des écoles maternelles et élémentaires à moins de 10 minutes à pied,, parmi lesquelles l'École Primaire Privée Saint Joseph et une crèche. Niveau transports en commun, on trouve la gare Conlie à proximité. Les autoroutes A11, A28 et A81 sont accessibles à moins de 20 km. Il y a une bibliothèque, un supermarché, deux boulangeries, trois commerces, une boucherie-charcuterie et un bureau de poste dans les environs. Enfin, le marché Place des Halles a lieu tous les jeudis matin.
Elle est à vendre pour la somme de 176 000 €.
Prenez contact avec François HOUDAYER (06-23-38-26-90) pour plus de renseignements sur la maison.

Mentions légales

Terrain proposé par un partenaire foncier selon disponibilités et autorisation de publicité au prix de 49 500 €. Hors droit d'enregistrement et frais de notaire. Maison proposée, avec un contrat de construction de maison individuelle, dans le cadre de la loi du 19/12/1990, au prix de 126 500 € (Hors branchements et raccordements, papiers peints, peintures, revêtement de sol dans les chambres, qui sont chiffrés dans les travaux qui restent à charge du client. Tarif modifiable sans préavis). Étiquette énergie : A. Différents modèles disponibles pour ce terrain. Assurances et garanties du constructeur comprises (RC professionnelle, décennale, dommage ouvrage).

Contactez l'agence de Le Mans

02 43 21 93 33

    * Champs obligatoires

    Vos informations sont traitées par HEXAOM et transmises à un conseiller commercial qui vous contactera afin de répondre à votre demande. Les plans et images présentés sur notre site sont la propriété d’HEXAOM et ne peuvent pas être reproduits sans son accord. Pour retrouver notre politique de protection des données personnelles et exercer vos droits conformément à la « loi informatique et liberté » cliquez-ici.