Maison neuve à
Changé (72560) Référence : FH2326939_7

Prix du projet : Maison avec Terrain

prix 480 000 €

  • 5 pièces
  • 3 chambres
  • Surface maison 129 m2

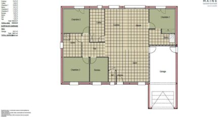
Changé : maison de 5 pièces (129 m²) à vendre
IDÉALEMENT SITUÉE - MAISON 5 PIÈCES NEUVE
À vendre : localisée à deux pas du Mans, idéalement située dans Changé (72560), laissez vous charmer par cette maison de 5 pièces de plain-pied de 129 m² et de 1 085 m² de terrain.
Conçue de plain-pied, elle inclut trois chambres, une cuisine et deux salles de bains. Cette maison est neuve.
La maison se trouve dans un quartier attractif. Il y a l'École Élémentaire Publique de l'Epau, le Collège Jacques Peletier et l'École Maternelle Publique de l'Auneau à moins de 10 minutes à pied. Niveau transports, on trouve quatre gares à moins de 10 minutes en voiture. Les autoroutes A28 et A11 sont accessibles à moins de 7 km. Il y a un tennis, quatre commerces, deux boulangeries, un supermarché, un bureau de poste et une boucherie-charcuterie dans les environs.
Elle est à vendre pour la somme de 480 000 €.
Prenez contact avec François HOUDAYER (tél : 06-23-38-26-90) pour toute information sur la propriété, sur les démarches à suivre ou sur les modalités de vente. Maine Construction Le Mans vous accompagne dans tous vos projets immobiliers et à toutes les étapes de l'achat.

Mentions légales

Terrain proposé par un partenaire foncier selon disponibilités et autorisation de publicité au prix de 180 000 €. Hors droit d'enregistrement et frais de notaire. Maison proposée, avec un contrat de construction de maison individuelle, dans le cadre de la loi du 19/12/1990, au prix de 300 000 € (Hors branchements et raccordements, papiers peints, peintures, revêtement de sol dans les chambres, qui sont chiffrés dans les travaux qui restent à charge du client. Tarif modifiable sans préavis). Étiquette énergie : A. Différents modèles disponibles pour ce terrain. Assurances et garanties du constructeur comprises (RC professionnelle, décennale, dommage ouvrage).

Contactez l'agence de Le Mans

02 43 21 93 33

    * Champs obligatoires

    Vos informations sont traitées par HEXAOM et transmises à un conseiller commercial qui vous contactera afin de répondre à votre demande. Les plans et images présentés sur notre site sont la propriété d’HEXAOM et ne peuvent pas être reproduits sans son accord. Pour retrouver notre politique de protection des données personnelles et exercer vos droits conformément à la « loi informatique et liberté » cliquez-ici.