Maison neuve à
Changé (72560) Référence : FH2326939_4

Prix du projet : Maison avec Terrain

prix 395 000 €

  • 6 pièces
  • 3 chambres
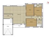
  • Surface maison 98 m2

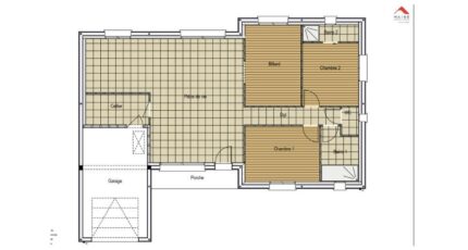
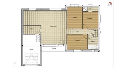
VENTE : maison T6 (98 m²) à Changé
IDÉALEMENT SITUÉE - MAISON 6 PIÈCES NEUVE
À vendre : située à quelques kilomètres du Mans, idéalement située dans Changé (72560), Maine Construction Le Mans vous présente cette maison de 6 pièces de plain-pied de 98 m².
Conçue de plain-pied, elle se divise en trois chambres, une cuisine et deux salles de bains. La maison est neuve.
Le terrain du bien s'étend sur 1 085 m².
Cette maison se situe dans un secteur prisé. L'École Élémentaire Publique de l'Epau, le Collège Jacques Peletier et l'École Maternelle Publique de l'Auneau sont implantés à moins de 10 minutes à pied. Côté transports en commun, on trouve quatre gares à moins de 10 minutes en voiture. Les autoroutes A28 et A11 sont accessibles à moins de 7 km. Il y a un tennis, quatre commerces, deux boulangeries, un supermarché, une boucherie-charcuterie et une supérette à quelques minutes à peine.
Elle est proposée à l'achat pour 395 000 €.
Contactez notre agence (François HOUDAYER : 06-23-38-26-90) pour obtenir de plus amples renseignements sur la maison et sur les démarches à suivre. Maine Construction Le Mans est là pour vous accompagner dans tous vos projets immobiliers.

Mentions légales

Terrain proposé par un partenaire foncier selon disponibilités et autorisation de publicité au prix de 180 000 €. Hors droit d'enregistrement et frais de notaire. Maison proposée, avec un contrat de construction de maison individuelle, dans le cadre de la loi du 19/12/1990, au prix de 215 000 € (Hors branchements et raccordements, papiers peints, peintures, revêtement de sol dans les chambres, qui sont chiffrés dans les travaux qui restent à charge du client. Tarif modifiable sans préavis). Étiquette énergie : A. Différents modèles disponibles pour ce terrain. Assurances et garanties du constructeur comprises (RC professionnelle, décennale, dommage ouvrage).

Contactez l'agence de Le Mans

02 43 21 93 33

    * Champs obligatoires

    Vos informations sont traitées par HEXAOM et transmises à un conseiller commercial qui vous contactera afin de répondre à votre demande. Les plans et images présentés sur notre site sont la propriété d’HEXAOM et ne peuvent pas être reproduits sans son accord. Pour retrouver notre politique de protection des données personnelles et exercer vos droits conformément à la « loi informatique et liberté » cliquez-ici.