Maison neuve à
Changé (72560) Référence : FH2326939_3

Prix du projet : Maison avec Terrain

prix 230 000 €

  • 3 pièces
  • 2 chambres
  • Surface maison 65 m2

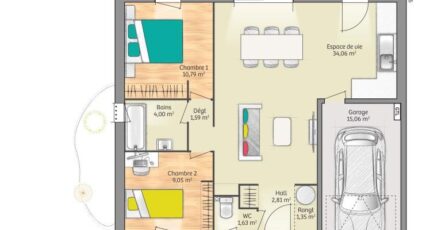
VENTE d'une maison F3 (65 m²) à Changé
IDÉALEMENT SITUÉE - MAISON 3 PIÈCES NEUVE
À vendre à 8 km du Mans, venez découvrir cette maison de 3 pièces de plain-pied de 65 m² idéalement située dans Changé (72560).
Conçue de plain-pied, elle offre deux chambres, une cuisine et une salle de bains. La maison est neuve.
Le terrain de la propriété s'étend sur 1 085 m².
Cette maison se trouve dans un secteur convoité. Il y a l'École Élémentaire Publique de l'Epau, le Collège Jacques Peletier et l'École Maternelle Publique de l'Auneau à moins de 10 minutes à pied. Côté transports, on trouve quatre gares à moins de 10 minutes en voiture. Les autoroutes A28 et A11 sont accessibles à moins de 7 km. Il y a un tennis, quatre commerces, deux boulangeries, un supermarché, une boucherie-charcuterie et une supérette à proximité du bien.
Elle est à vendre pour la somme de 230 000 €.
N'hésitez pas à prendre contact avec notre agence (HOUDAYER François : 06-23-38-26-90) pour toute question sur la maison, sur les modalités de vente ou sur les démarches à suivre.

Mentions légales

Terrain proposé par un partenaire foncier selon disponibilités et autorisation de publicité au prix de 180 000 €. Hors droit d'enregistrement et frais de notaire. Maison proposée, avec un contrat de construction de maison individuelle, dans le cadre de la loi du 19/12/1990, au prix de 50 000 € (Hors branchements et raccordements, papiers peints, peintures, revêtement de sol dans les chambres, qui sont chiffrés dans les travaux qui restent à charge du client. Tarif modifiable sans préavis). Étiquette énergie : A. Différents modèles disponibles pour ce terrain. Assurances et garanties du constructeur comprises (RC professionnelle, décennale, dommage ouvrage).

Contactez l'agence de Le Mans

02 43 21 93 33

    * Champs obligatoires

    Vos informations sont traitées par HEXAOM et transmises à un conseiller commercial qui vous contactera afin de répondre à votre demande. Les plans et images présentés sur notre site sont la propriété d’HEXAOM et ne peuvent pas être reproduits sans son accord. Pour retrouver notre politique de protection des données personnelles et exercer vos droits conformément à la « loi informatique et liberté » cliquez-ici.