Maison neuve à
Changé (72560) Référence : FH2326939_17

Prix du projet : Maison avec Terrain

prix 515 000 €

  • 7 pièces
  • 3 chambres
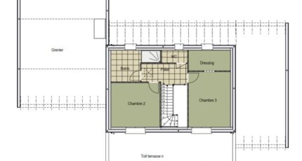
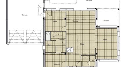
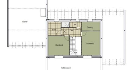
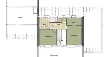
  • Surface maison 142 m2

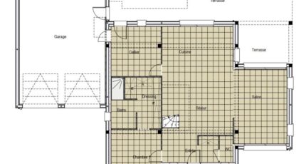
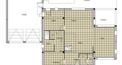
Maison T7 (142 m²) à vendre à Changé
IDÉALEMENT SITUÉE - MAISON 7 PIÈCES NEUVE
En vente : localisée à 8 km du Mans, idéalement située dans Changé (72560), votre agence Maine Construction Le Mans est ravie de vous présenter cette maison de 7 pièces de 142 m² et de 1 085 m² de terrain.
Il s'agit d'une maison de 2 niveaux. Son intérieur est composé de trois chambres, d'une cuisine et de deux salles de bains. Cette maison est neuve.
La maison se situe dans un quartier recherché. On trouve l'École Élémentaire Publique de l'Epau, le Collège Jacques Peletier et l'École Maternelle Publique de l'Auneau à moins de 10 minutes à pied. Niveau transports en commun, il y a quatre gares à moins de 10 minutes en voiture. Les autoroutes A28 et A11 sont accessibles à moins de 7 km. On trouve un tennis, quatre commerces, deux boulangeries, un supermarché, un bureau de poste et une boucherie-charcuterie dans les environs.
Elle est proposée à l'achat pour 515 000 €.
N'hésitez pas à prendre contact avec notre constructeur (François HOUDAYER : 06-23-38-26-90) pour obtenir de plus amples renseignements sur la maison ou sur les modalités de vente. Faites de vos projets immobiliers une réalité avec Maine Construction Le Mans.

Mentions légales

Terrain proposé par un partenaire foncier selon disponibilités et autorisation de publicité au prix de 180 000 €. Hors droit d'enregistrement et frais de notaire. Maison proposée, avec un contrat de construction de maison individuelle, dans le cadre de la loi du 19/12/1990, au prix de 335 000 € (Hors branchements et raccordements, papiers peints, peintures, revêtement de sol dans les chambres, qui sont chiffrés dans les travaux qui restent à charge du client. Tarif modifiable sans préavis). Étiquette énergie : A. Différents modèles disponibles pour ce terrain. Assurances et garanties du constructeur comprises (RC professionnelle, décennale, dommage ouvrage).

Contactez l'agence de Le Mans

02 43 21 93 33

    * Champs obligatoires

    Vos informations sont traitées par HEXAOM et transmises à un conseiller commercial qui vous contactera afin de répondre à votre demande. Les plans et images présentés sur notre site sont la propriété d’HEXAOM et ne peuvent pas être reproduits sans son accord. Pour retrouver notre politique de protection des données personnelles et exercer vos droits conformément à la « loi informatique et liberté » cliquez-ici.