Maison neuve à
Changé (72560) Référence : FH2326939_16

Prix du projet : Maison avec Terrain

prix 385 000 €

  • 5 pièces
  • 3 chambres
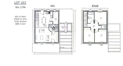
  • Surface maison 85 m2

Maison F5 (85 m²) en vente à Changé
IDÉALEMENT SITUÉE - MAISON 5 PIÈCES NEUVE
À deux pas du Mans, notre agence Maine Construction Le Mans est heureuse de vous proposer cette maison de 5 pièces de 85 m² et de 1 085 m² de terrain idéalement située dans Changé (72560). Elle offre trois chambres, une cuisine et une salle de bains.
Il s'agit d'une maison de 2 niveaux. Elle est neuve.
La maison est située dans un secteur convoité. L'École Élémentaire Publique de l'Epau, le Collège Jacques Peletier et l'École Maternelle Publique de l'Auneau sont implantés à moins de 10 minutes à pied. Niveau transports en commun, il y a quatre gares à moins de 10 minutes en voiture. Les autoroutes A28 et A11 sont accessibles à moins de 7 km. On trouve un tennis, quatre commerces, deux boulangeries, un supermarché, une supérette et un bureau de poste dans les environs.
Elle est à vendre pour la somme de 385 000 €.
Contactez notre agence (François HOUDAYER : 06-23-38-26-90) pour tout renseignement sur la maison.

Mentions légales

Terrain proposé par un partenaire foncier selon disponibilités et autorisation de publicité au prix de 180 000 €. Hors droit d'enregistrement et frais de notaire. Maison proposée, avec un contrat de construction de maison individuelle, dans le cadre de la loi du 19/12/1990, au prix de 205 000 € (Hors branchements et raccordements, papiers peints, peintures, revêtement de sol dans les chambres, qui sont chiffrés dans les travaux qui restent à charge du client. Tarif modifiable sans préavis). Étiquette énergie : A. Différents modèles disponibles pour ce terrain. Assurances et garanties du constructeur comprises (RC professionnelle, décennale, dommage ouvrage).

Contactez l'agence de Le Mans

02 43 21 93 33

    * Champs obligatoires

    Vos informations sont traitées par HEXAOM et transmises à un conseiller commercial qui vous contactera afin de répondre à votre demande. Les plans et images présentés sur notre site sont la propriété d’HEXAOM et ne peuvent pas être reproduits sans son accord. Pour retrouver notre politique de protection des données personnelles et exercer vos droits conformément à la « loi informatique et liberté » cliquez-ici.