Maison neuve à
Changé (72560) Référence : FH2326939_14

Prix du projet : Maison avec Terrain

prix 375 000 €

  • 5 pièces
  • 3 chambres
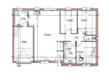
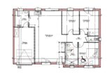
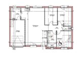
  • Surface maison 91 m2

VENTE : maison T5 (91 m²) à Changé
IDÉALEMENT SITUÉE - MAISON 5 PIÈCES NEUVE
En vente : à 8 km du Mans, Maine Construction Le Mans vous propose cette maison de 5 pièces de plain-pied de 91 m², idéalement située dans Changé (72560). Son intérieur offre trois chambres, une cuisine et une salle de bains.
Le terrain de la propriété s'étend sur 1 085 m².
La maison est neuve.
Cette maison se situe dans un secteur prisé. Il y a l'École Élémentaire Publique de l'Epau, le Collège Jacques Peletier et l'École Maternelle Publique de l'Auneau à moins de 10 minutes à pied. Côté transports en commun, on trouve quatre gares à moins de 10 minutes en voiture. Les autoroutes A28 et A11 sont accessibles à moins de 7 km. Il y a un tennis, quatre commerces, deux boulangeries, un supermarché, une supérette et une boucherie-charcuterie dans les environs.
Elle est proposée à l'achat pour 375 000 €.
Contactez François HOUDAYER (tél : 06-23-38-26-90) pour toute question sur la maison, sur les modalités de vente ou sur les démarches à suivre. Concrétisez vos projets immobiliers avec Maine Construction Le Mans.

Mentions légales

Terrain proposé par un partenaire foncier selon disponibilités et autorisation de publicité au prix de 180 000 €. Hors droit d'enregistrement et frais de notaire. Maison proposée, avec un contrat de construction de maison individuelle, dans le cadre de la loi du 19/12/1990, au prix de 195 000 € (Hors branchements et raccordements, papiers peints, peintures, revêtement de sol dans les chambres, qui sont chiffrés dans les travaux qui restent à charge du client. Tarif modifiable sans préavis). Étiquette énergie : A. Différents modèles disponibles pour ce terrain. Assurances et garanties du constructeur comprises (RC professionnelle, décennale, dommage ouvrage).

Contactez l'agence de Le Mans

02 43 21 93 33

    * Champs obligatoires

    Vos informations sont traitées par HEXAOM et transmises à un conseiller commercial qui vous contactera afin de répondre à votre demande. Les plans et images présentés sur notre site sont la propriété d’HEXAOM et ne peuvent pas être reproduits sans son accord. Pour retrouver notre politique de protection des données personnelles et exercer vos droits conformément à la « loi informatique et liberté » cliquez-ici.