Maison neuve à
Changé (72560) Référence : FH2326939_10

Prix du projet : Maison avec Terrain

prix 452 000 €

  • 6 pièces
  • 3 chambres
  • Surface maison 128 m2

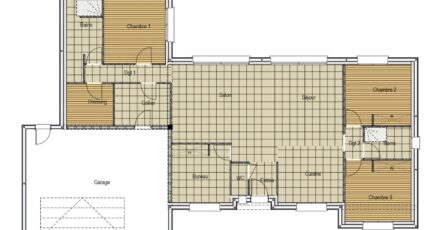
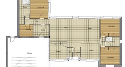
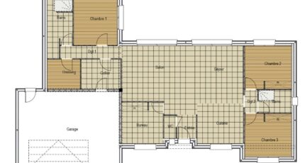
VENTE d'une maison F6 (128 m²) à Changé
IDÉALEMENT SITUÉE - MAISON 6 PIÈCES NEUVE
En vente : localisée à deux pas du Mans, idéalement située dans Changé (72560), Maine Construction Le Mans vous présente cette maison de 6 pièces de plain-pied de 128 m² et de 1 085 m² de terrain.
Elle comporte trois chambres, une cuisine et deux salles de bains. La maison est neuve.
Cette propriété se trouve dans un quartier convoité. L'École Élémentaire Publique de l'Epau, le Collège Jacques Peletier et l'École Maternelle Publique de l'Auneau sont implantés à moins de 10 minutes à pied. Côté transports en commun, on trouve quatre gares à moins de 10 minutes en voiture. Les autoroutes A28 et A11 sont accessibles à moins de 7 km. Il y a un tennis, quatre commerces, deux boulangeries, un supermarché, une supérette et un bureau de poste à proximité.
Elle est proposée à l'achat pour 452 000 €.
Contactez François HOUDAYER (tél : 06-23-38-26-90) pour toute question sur la maison, sur les démarches à suivre ou sur les modalités de vente. Maine Construction Le Mans vous accompagne dans tous vos projets immobiliers et à toutes les étapes de votre projet.

Mentions légales

Terrain proposé par un partenaire foncier selon disponibilités et autorisation de publicité au prix de 180 000 €. Hors droit d'enregistrement et frais de notaire. Maison proposée, avec un contrat de construction de maison individuelle, dans le cadre de la loi du 19/12/1990, au prix de 272 000 € (Hors branchements et raccordements, papiers peints, peintures, revêtement de sol dans les chambres, qui sont chiffrés dans les travaux qui restent à charge du client. Tarif modifiable sans préavis). Étiquette énergie : A. Différents modèles disponibles pour ce terrain. Assurances et garanties du constructeur comprises (RC professionnelle, décennale, dommage ouvrage).

Contactez l'agence de Le Mans

02 43 21 93 33

    * Champs obligatoires

    Vos informations sont traitées par HEXAOM et transmises à un conseiller commercial qui vous contactera afin de répondre à votre demande. Les plans et images présentés sur notre site sont la propriété d’HEXAOM et ne peuvent pas être reproduits sans son accord. Pour retrouver notre politique de protection des données personnelles et exercer vos droits conformément à la « loi informatique et liberté » cliquez-ici.