Maison neuve à
Changé (72560) Référence : FH2326939_1

Prix du projet : Maison avec Terrain

prix 255 000 €

  • 3 pièces
  • 1 chambre
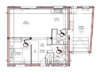
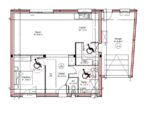
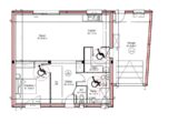
  • Surface maison 70 m2

VENTE d'une maison de 3 pièces (70 m²) à Changé
IDÉALEMENT SITUÉE - MAISON 3 PIÈCES NEUVE
En vente : localisée à deux pas du Mans, votre agence Maine Construction Le Mans est heureuse de vous proposer, idéalement située dans Changé (72560), cette maison de 3 pièces de plain-pied de 70 m² et de 1 085 m² de terrain.
Son intérieur compte une chambre, une cuisine et une salle de bains. La maison est neuve.
Cette maison se trouve dans un quartier convoité. L'École Élémentaire Publique de l'Epau, le Collège Jacques Peletier et l'École Maternelle Publique de l'Auneau sont implantés à moins de 10 minutes à pied. Côté transports, on trouve quatre gares à moins de 10 minutes en voiture. Les autoroutes A28 et A11 sont accessibles à moins de 7 km. Il y a un tennis, quatre commerces, deux boulangeries, un supermarché, une boucherie-charcuterie et une supérette à proximité du bien.
Elle est à vendre pour la somme de 255 000 €.
Prenez contact avec François HOUDAYER (06-23-38-26-90) pour toute information sur la maison. Donnez vie à vos projets immobiliers avec Maine Construction Le Mans.

Mentions légales

Terrain proposé par un partenaire foncier selon disponibilités et autorisation de publicité au prix de 180 000 €. Hors droit d'enregistrement et frais de notaire. Maison proposée, avec un contrat de construction de maison individuelle, dans le cadre de la loi du 19/12/1990, au prix de 75 000 € (Hors branchements et raccordements, papiers peints, peintures, revêtement de sol dans les chambres, qui sont chiffrés dans les travaux qui restent à charge du client. Tarif modifiable sans préavis). Étiquette énergie : A. Différents modèles disponibles pour ce terrain. Assurances et garanties du constructeur comprises (RC professionnelle, décennale, dommage ouvrage).

Contactez l'agence de Le Mans

02 43 21 93 33

    * Champs obligatoires

    Vos informations sont traitées par HEXAOM et transmises à un conseiller commercial qui vous contactera afin de répondre à votre demande. Les plans et images présentés sur notre site sont la propriété d’HEXAOM et ne peuvent pas être reproduits sans son accord. Pour retrouver notre politique de protection des données personnelles et exercer vos droits conformément à la « loi informatique et liberté » cliquez-ici.