Maison neuve à
Beaufay (72110) Référence : LL2424267_3

Prix du projet : Maison avec Terrain

prix 259 000 €

  • 5 pièces
  • 3 chambres
  • Surface maison 100 m2

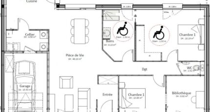
VENTE : maison de 5 pièces (100 m²) à Beaufay
EMPLACEMENT PRIVILÉGIÉ - MAISON 5 PIÈCES NEUVE Normes PMR
À vendre : localisée à quelques kilomètres du Mans, nous sommes ravis de vous présenter, bénéficiant d'un emplacement privilégié dans Beaufay (72110), cette maison de 5 pièces de plain-pied de 100 m² et de 716 m² de terrain. Son intérieur est composé de trois chambres, d'une cuisine et d'une salle de bains.
La maison est neuve.
La maison se trouve dans un secteur convoité. Une école primaire y est implantée. Les autoroutes A11 et A28 sont accessibles à moins de 16 km. Il y a un tennis, une boulangerie et une épicerie dans les environs.
Elle est proposée à l'achat pour 259 000 €.
Prenez contact avec Luc LIVET (07-77-76-37-30) pour toute information sur la maison, sur les démarches à suivre ou sur les modalités de vente. Maine Construction Le Mans est là pour vous accompagner à toutes les étapes de votre projet.

Mentions légales

Terrain proposé par un partenaire foncier selon disponibilités et autorisation de publicité au prix de 39 500 €. Hors droit d'enregistrement et frais de notaire. Terrain + Maison proposés au prix de 259 000 € (Hors branchements et raccordements, papiers peints, peintures, revêtement de sol dans les chambres. Tarif modifiable sans préavis). Etiquette énergie : A. Différents modèles disponibles pour ce terrain. Assurances et garanties du constructeur (RC professionnelle, décennale, dommage ouvrage, garantie de remboursement de l'acompte, livraison à prix et délai convenu) : https://www.maine-construction.fr/mentions-legales/. HEXAOM Services est enregistré auprès de l'ORIAS en tant que Courtier en financement, Niveau 1, sous le numéro 14001345.

Contactez l'agence de Le Mans

02 43 21 93 33

    * Champs obligatoires

    Vos informations sont traitées par HEXAOM et transmises à un conseiller commercial qui vous contactera afin de répondre à votre demande. Les plans et images présentés sur notre site sont la propriété d’HEXAOM et ne peuvent pas être reproduits sans son accord. Pour retrouver notre politique de protection des données personnelles et exercer vos droits conformément à la « loi informatique et liberté » cliquez-ici.