Maison neuve à
Ardenay-sur-Mérize (72370) Référence : LL2451377_6

Prix du projet : Maison avec Terrain

prix 295 000 €

  • 4 pièces
  • 3 chambres
  • Surface maison 116 m2

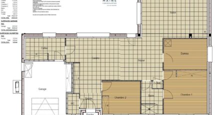
Ardenay-sur-Mérize : maison T4 (116 m²) en vente
QUARTIER RECHERCHÉ - MAISON 4 PIÈCES NEUVE
À quelques kilomètres du Mans, à vendre dans un quartier recherché d'Ardenay-sur-Mérize (72370), votre agence Maine Construction Le Mans est heureuse de vous proposer cette maison de 4 pièces de plain-pied de 116 m² et de 687 m² de terrain. Elle offre trois chambres, une cuisine et une salle de bains.
Cette maison est neuve.
La maison se situe dans un secteur convoité. L'École Élémentaire Publique est implantée à moins de 10 minutes à pied. Niveau transports en commun, on trouve quatre gares à moins de 10 minutes en voiture. Il y a une bibliothèque à quelques minutes.
Son prix de vente est de 295 000 €.
Prenez contact avec Luc LIVET pour obtenir de plus amples informations sur le bien, sur les modalités de vente ou sur les démarches à suivre. Donnez vie à vos projets immobiliers avec Maine Construction Le Mans.

Mentions légales

Terrain proposé par un partenaire foncier selon disponibilités et autorisation de publicité au prix de 44 900 €. Hors droit d'enregistrement et frais de notaire. Terrain + Maison proposés au prix de 295 000 € (Hors branchements et raccordements, papiers peints, peintures, revêtement de sol dans les chambres. Tarif modifiable sans préavis). Etiquette énergie : A. Différents modèles disponibles pour ce terrain. Assurances et garanties du constructeur (RC professionnelle, décennale, dommage ouvrage, garantie de remboursement de l'acompte, livraison à prix et délai convenu) : https://www.maine-construction.fr/mentions-legales/. HEXAOM Services est enregistré auprès de l'ORIAS en tant que Courtier en financement, Niveau 1, sous le numéro 14001345.

Contactez l'agence de Le Mans

02 43 21 93 33

    * Champs obligatoires

    Vos informations sont traitées par HEXAOM et transmises à un conseiller commercial qui vous contactera afin de répondre à votre demande. Les plans et images présentés sur notre site sont la propriété d’HEXAOM et ne peuvent pas être reproduits sans son accord. Pour retrouver notre politique de protection des données personnelles et exercer vos droits conformément à la « loi informatique et liberté » cliquez-ici.