Maison neuve à
Aigné (72650) Référence : LL2325646_2

Prix du projet : Maison avec Terrain

prix 220 000 €

  • 4 pièces
  • 3 chambres
  • Surface maison 90 m2

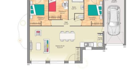
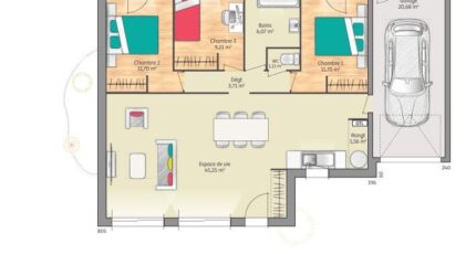
VENTE d'une maison F4 (90 m²) à Aigné
IDÉALEMENT SITUÉE - MAISON 4 PIÈCES NEUVE
En vente à quelques kilomètres du Mans, votre agence Maine Construction Le Mans est ravie de vous présenter cette maison de 4 pièces de plain-pied de 90 m² et de 780 m² de terrain idéalement située dans Aigné (72650). Elle offre trois chambres, une cuisine et une salle de bains.
La maison est neuve.
Cette maison se trouve dans un secteur convoité. L'École Primaire Publique Roger Bazille est implantée à moins de 10 minutes à pied. Côté transports, on trouve quatre gares à moins de 10 minutes en voiture. L'autoroute A11 est accessible à 4 km. Il y a un tennis à quelques minutes à peine.
Elle est à vendre pour la somme de 220 000 €.
Prenez contact avec Luc LIVET (07-77-76-37-30)Maine Construction pour toute question sur la maison ou sur les démarches à suivre.

Mentions légales

Terrain proposé par un partenaire foncier selon disponibilités et autorisation de publicité au prix de 52 000 €. Hors droit d'enregistrement et frais de notaire. Maison proposée, avec un contrat de construction de maison individuelle, dans le cadre de la loi du 19/12/1990, au prix de 168 000 € (Hors branchements et raccordements, papiers peints, peintures, revêtement de sol dans les chambres, qui sont chiffrés dans les travaux qui restent à charge du client. Tarif modifiable sans préavis). Étiquette énergie : A. Différents modèles disponibles pour ce terrain. Assurances et garanties du constructeur comprises (RC professionnelle, décennale, dommage ouvrage).

Contactez l'agence de Le Mans

02 43 21 93 33

    * Champs obligatoires

    Vos informations sont traitées par HEXAOM et transmises à un conseiller commercial qui vous contactera afin de répondre à votre demande. Les plans et images présentés sur notre site sont la propriété d’HEXAOM et ne peuvent pas être reproduits sans son accord. Pour retrouver notre politique de protection des données personnelles et exercer vos droits conformément à la « loi informatique et liberté » cliquez-ici.