Maison neuve à
Aigné (72650) Référence : LL2325646_1

Prix du projet : Maison avec Terrain

prix 235 000 €

  • 4 pièces
  • 3 chambres
  • Surface maison 90 m2

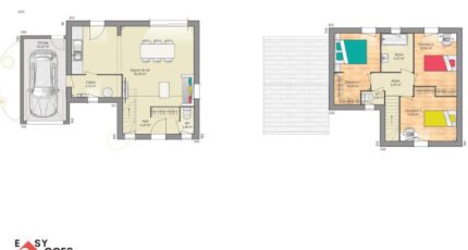
VENTE : maison T4 (90 m²) à Aigné
IDÉALEMENT SITUÉE - MAISON 4 PIÈCES NEUVE
À vendre : située à quelques kilomètres du Mans, Maine Construction Le Mans vous propose cette maison de 4 pièces de 90 m² idéalement située dans Aigné (72650). Elle comporte trois chambres, une cuisine et une salle de bains.
Le terrain de la propriété est de 780 m².
Cette maison possède 2 niveaux. Elle est neuve.
La maison est située dans un quartier convoité. Il y a l'École Primaire Publique Roger Bazille à moins de 10 minutes à pied. Niveau transports en commun, on trouve quatre gares à moins de 10 minutes en voiture. On trouve un accès à l'autoroute A11 à 4 km. Il y a un tennis dans les environs.
Elle est à vendre pour la somme de 235 000 €.
N'hésitez pas à prendre contact avec notre agence (Luc LIVET : 07-77-76-37-30) pour toute question sur la maison. Maine Construction Le Mans est là pour vous accompagner dans toutes vos démarches.

Mentions légales

Terrain proposé par un partenaire foncier selon disponibilités et autorisation de publicité au prix de 52 000 €. Hors droit d'enregistrement et frais de notaire. Maison proposée, avec un contrat de construction de maison individuelle, dans le cadre de la loi du 19/12/1990, au prix de 183 000 € (Hors branchements et raccordements, papiers peints, peintures, revêtement de sol dans les chambres, qui sont chiffrés dans les travaux qui restent à charge du client. Tarif modifiable sans préavis). Étiquette énergie : A. Différents modèles disponibles pour ce terrain. Assurances et garanties du constructeur comprises (RC professionnelle, décennale, dommage ouvrage).

Contactez l'agence de Le Mans

02 43 21 93 33

    * Champs obligatoires

    Vos informations sont traitées par HEXAOM et transmises à un conseiller commercial qui vous contactera afin de répondre à votre demande. Les plans et images présentés sur notre site sont la propriété d’HEXAOM et ne peuvent pas être reproduits sans son accord. Pour retrouver notre politique de protection des données personnelles et exercer vos droits conformément à la « loi informatique et liberté » cliquez-ici.