Maison neuve à
Aigné (72650) Référence : FH2325207_6

Prix du projet : Maison avec Terrain

prix 249 000 €

  • 4 pièces
  • 2 chambres
  • Surface maison 94 m2

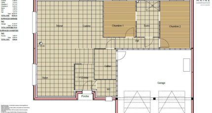
VENTE : maison F4 (94 m²) à Aigné
IDÉALEMENT SITUÉE - MAISON 4 PIÈCES NEUVE
À vendre à 11 km du Mans, Maine Construction Le Mans vous présente, idéalement située dans Aigné (72650), cette maison de 4 pièces de plain-pied de 94 m².
Elle propose deux chambres, une cuisine et une salle de bains. Cette maison est neuve.
Le terrain du bien s'étend sur 780 m².
La maison se situe dans un quartier attractif. Il y a l'École Primaire Publique Roger Bazille à moins de 10 minutes à pied. Niveau transports, on trouve quatre gares à moins de 10 minutes en voiture. L'autoroute A11 est accessible à 4 km. Il y a un tennis dans les environs.
Elle est à vendre pour la somme de 249 000 €.
Contactez notre agence (HOUDAYER François : 06-23-38-26-90) pour tout renseignement sur la propriété ou sur les démarches à suivre. Maine Construction Le Mans est là pour vous accompagner dans tous vos projets immobiliers.

Mentions légales

Terrain proposé par un partenaire foncier selon disponibilités et autorisation de publicité au prix de 52 000 €. Hors droit d'enregistrement et frais de notaire. Maison proposée, avec un contrat de construction de maison individuelle, dans le cadre de la loi du 19/12/1990, au prix de 197 000 € (Hors branchements et raccordements, papiers peints, peintures, revêtement de sol dans les chambres, qui sont chiffrés dans les travaux qui restent à charge du client. Tarif modifiable sans préavis). Étiquette énergie : A. Différents modèles disponibles pour ce terrain. Assurances et garanties du constructeur comprises (RC professionnelle, décennale, dommage ouvrage).

Contactez l'agence de Le Mans

02 43 21 93 33

    * Champs obligatoires

    Vos informations sont traitées par HEXAOM et transmises à un conseiller commercial qui vous contactera afin de répondre à votre demande. Les plans et images présentés sur notre site sont la propriété d’HEXAOM et ne peuvent pas être reproduits sans son accord. Pour retrouver notre politique de protection des données personnelles et exercer vos droits conformément à la « loi informatique et liberté » cliquez-ici.