Maison neuve à
Aigné (72650) Référence : FH2325207_10

Prix du projet : Maison avec Terrain

prix 411 000 €

  • 5 pièces
  • 4 chambres
  • Surface maison 148 m2

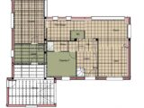
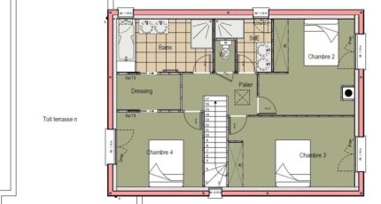
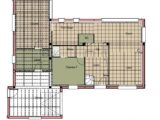
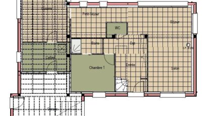
VENTE d'une maison F5 (148 m²) à Aigné
IDÉALEMENT SITUÉE - MAISON 5 PIÈCES NEUVE
À vendre à 11 km du Mans, votre agence Maine Construction Le Mans est heureuse de vous présenter cette maison de 5 pièces de 148 m² et de 780 m² de terrain idéalement située dans Aigné (72650). Son intérieur est composé de quatre chambres, d'une cuisine et de deux salles de bains.
Il s'agit d'une maison de 2 niveaux. Elle est neuve.
La maison se situe dans un secteur prisé. L'École Primaire Publique Roger Bazille se trouve à moins de 10 minutes à pied. Côté transports en commun, il y a quatre gares à moins de 10 minutes en voiture. L'autoroute A11 est accessible à 4 km. On trouve un tennis dans les environs.
Elle est à vendre pour la somme de 411 000 €.
Prenez contact avec notre constructeur (François HOUDAYER : 06-23-38-26-90) pour obtenir de plus amples renseignements sur la maison. Maine Construction Le Mans est là pour vous accompagner dans tous vos projets immobiliers.

Mentions légales

Terrain proposé par un partenaire foncier selon disponibilités et autorisation de publicité au prix de 52 000 €. Hors droit d'enregistrement et frais de notaire. Maison proposée, avec un contrat de construction de maison individuelle, dans le cadre de la loi du 19/12/1990, au prix de 359 000 € (Hors branchements et raccordements, papiers peints, peintures, revêtement de sol dans les chambres, qui sont chiffrés dans les travaux qui restent à charge du client. Tarif modifiable sans préavis). Étiquette énergie : A. Différents modèles disponibles pour ce terrain. Assurances et garanties du constructeur comprises (RC professionnelle, décennale, dommage ouvrage).

Contactez l'agence de Le Mans

02 43 21 93 33

    * Champs obligatoires

    Vos informations sont traitées par HEXAOM et transmises à un conseiller commercial qui vous contactera afin de répondre à votre demande. Les plans et images présentés sur notre site sont la propriété d’HEXAOM et ne peuvent pas être reproduits sans son accord. Pour retrouver notre politique de protection des données personnelles et exercer vos droits conformément à la « loi informatique et liberté » cliquez-ici.