Maison neuve à
Aigné (72650) Référence : FH2317540_7

Prix du projet : Maison avec Terrain

prix 225 000 €

  • 5 pièces
  • 3 chambres
  • Surface maison 85 m2

Aigné : maison de 5 pièces (85 m²) en vente
PROCHE CENTRE-VILLE - MAISON 5 PIÈCES NEUVE
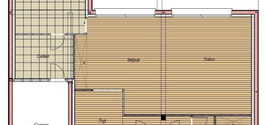
En vente : localisée à 11 km du Mans, nous vous proposons cette maison de 5 pièces de plain-pied de 85 m² proche du centre-ville d'Aigné (72650).
Conçue de plain-pied, elle comporte trois chambres, une cuisine et une salle de bains. Cette maison est neuve.
Le terrain de la propriété s'étend sur 780 m².
L'École Primaire Publique Roger Bazille est implantée à moins de 10 minutes à pied. Niveau transports en commun, on trouve quatre gares à moins de 10 minutes en voiture. L'autoroute A11 est accessible à 4 km. Il y a un tennis à quelques minutes.
Son prix de vente est de 225 000 €.
N'hésitez pas à prendre contact avec notre agence (François HOUDAYER : 06-23-38-26-90) pour toute information sur la maison et sur les démarches à suivre. Maine Construction Le Mans est là pour vous accompagner dans tous vos projets immobiliers.

Mentions légales

Terrain proposé par un partenaire foncier selon disponibilités et autorisation de publicité au prix de 52 000 €. Hors droit d'enregistrement et frais de notaire. Maison proposée, avec un contrat de construction de maison individuelle, dans le cadre de la loi du 19/12/1990, au prix de 173 000 € (Hors branchements et raccordements, papiers peints, peintures, revêtement de sol dans les chambres, qui sont chiffrés dans les travaux qui restent à charge du client. Tarif modifiable sans préavis). Étiquette énergie : A. Différents modèles disponibles pour ce terrain. Assurances et garanties du constructeur comprises (RC professionnelle, décennale, dommage ouvrage).

Contactez l'agence de Le Mans

02 43 21 93 33

    * Champs obligatoires

    Vos informations sont traitées par HEXAOM et transmises à un conseiller commercial qui vous contactera afin de répondre à votre demande. Les plans et images présentés sur notre site sont la propriété d’HEXAOM et ne peuvent pas être reproduits sans son accord. Pour retrouver notre politique de protection des données personnelles et exercer vos droits conformément à la « loi informatique et liberté » cliquez-ici.