Maison neuve à
Aigné (72650) Référence : FH2317540_3

Prix du projet : Maison avec Terrain

prix 315 000 €

  • 7 pièces
  • 3 chambres
  • Surface maison 134 m2

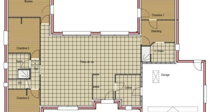
Maison de 7 pièces (134 m²) à vendre à Aigné
PROCHE CENTRE-VILLE - MAISON 7 PIÈCES NEUVE
En vente : à quelques kilomètres du Mans, proche du centre-ville d'Aigné (72650), Maine Construction Le Mans vous propose cette maison de 7 pièces de plain-pied de 134 m² et de 780 m² de terrain. Son intérieur dispose de trois chambres, d'une cuisine et de deux salles de bains.
La maison est neuve.
L'École Primaire Publique Roger Bazille se trouve à moins de 10 minutes à pied. Côté transports, il y a quatre gares à moins de 10 minutes en voiture. L'autoroute A11 est accessible à 4 km. On trouve un tennis dans les environs.
Elle est à vendre pour la somme de 315 000 €.
Contactez notre agence (HOUDAYER François : 06-23-38-26-90) pour tout renseignement sur le bien. Faites de vos projets immobiliers une réalité avec Maine Construction Le Mans.

Mentions légales

Terrain proposé par un partenaire foncier selon disponibilités et autorisation de publicité au prix de 52 000 €. Hors droit d'enregistrement et frais de notaire. Maison proposée, avec un contrat de construction de maison individuelle, dans le cadre de la loi du 19/12/1990, au prix de 263 000 € (Hors branchements et raccordements, papiers peints, peintures, revêtement de sol dans les chambres, qui sont chiffrés dans les travaux qui restent à charge du client. Tarif modifiable sans préavis). Étiquette énergie : A. Différents modèles disponibles pour ce terrain. Assurances et garanties du constructeur comprises (RC professionnelle, décennale, dommage ouvrage).

Contactez l'agence de Le Mans

02 43 21 93 33

    * Champs obligatoires

    Vos informations sont traitées par HEXAOM et transmises à un conseiller commercial qui vous contactera afin de répondre à votre demande. Les plans et images présentés sur notre site sont la propriété d’HEXAOM et ne peuvent pas être reproduits sans son accord. Pour retrouver notre politique de protection des données personnelles et exercer vos droits conformément à la « loi informatique et liberté » cliquez-ici.